32 le Morel - 5 personnes
Valmorel
200,00 €
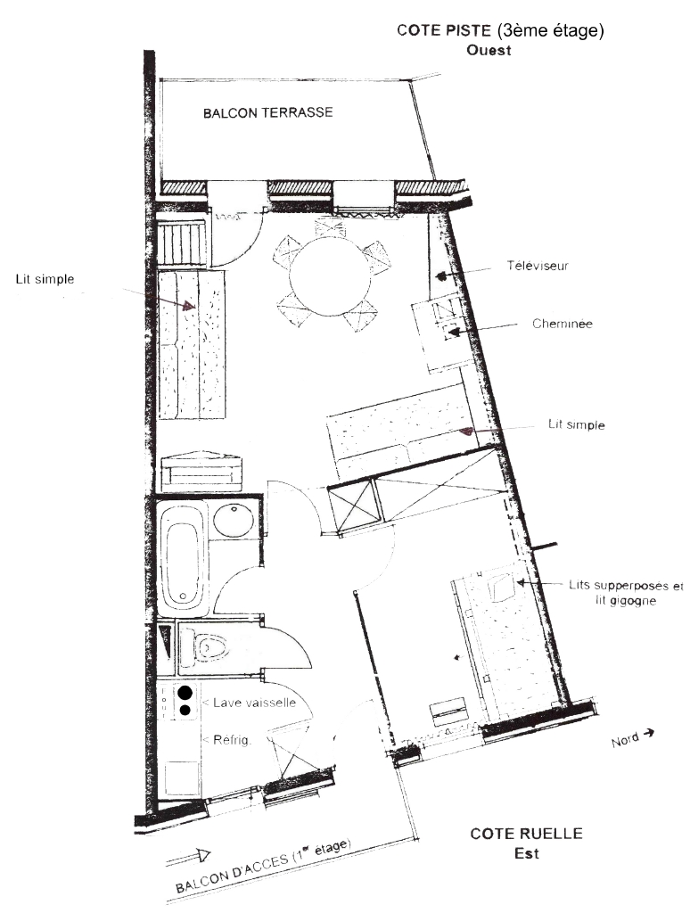
Appartement à 20 m. de l'Altispace, à 50 m. du club Piou Piou (de 18 mois à 6 ans : garderie avec activités, initiation au ski), des commerces, des restaurants, du cinéma, du télébourg. Dépose des bagages à 20 m. Parking et arrêt des bus à proximité. Accès : un seul étage à monter (mais niveau 3/4 côté pistes). Séjour (vue sur les pistes) : 2 lits 190x80 (faisant banquette), buffet, table ronde, 5 chaises, 2 tabourets, cheminée, TV, lecteur DVD, radio réveil, placard penderie. Chambre séparée (sur ruelle piétonne) : grand placard penderie, 3 lits de 190x80 : 2 lits superposés et 1 lit gigogne (ce dernier peut soit se glisser sous le lit du bas, soit se mettre au même niveau). Cuisine : plaque vitro-céramique 3 feux, lave vaisselle, réfrigérateur/congélateur, four micro ondes, four traditionnel, bouilloire, cafetière, presse agrumes, grille pain, mixer, ... Salle de bains : baignoire/douche thermostatique, lavabo, lave linge, radiateur sèche serviettes, sèche cheveux. Entrée : placard penderie. WC séparés. Balcon/terrasse 5 m² : table, 2 fauteuils de jardin, luge et pelles luges prêtées en hiver.
Tarifs
| Semaine | de 200 à 360 € |
Classements et Labels
Équipements et services
- Habitation indépendante
- Parking à proximité
- Location de draps
- Ménage avec supplément
- Réservation de prestations
- Aspirateur
- Baignoire
- Non fumeur
- Accès Internet privatif Wifi
- Cuisine
- Cheminée / Poêle
- Four
- Lave linge privatif
- Lave vaisselle
- Réfrigérateur
- Sèche cheveux
- Sèche serviettes
- Télévision
- Balcon
- Toilettes séparées
- 1 salle de bain (privée)
- Lecteur DVD
- Micro-ondes
- Séjour / Salle à manger
- Matériel de repassage
Environnement
- Vue montagne
- En montagne
- A 300 m maxi des pistes
- Centre station
- Accessible skis aux pieds
Langues parlées
- Anglais
- Français
Moyens de paiement
- Chèque
- Virement
INSPIRATION













