Appartement 3 pièces 6 personnes
Arêches-Beaufort
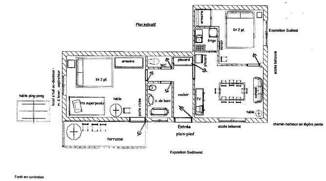
Cet appartement comprend : * Entrée de plain-pied bétonnée * Couloir avec grand placard * WC indépendant * Salle de bains avec baignoire * Séjour avec coin cuisine équipée (16 m2) : * 2 chambres comprenant : - un lit 2 pers. (8 m2) - un lit 2 pers., 2 lits 1 place superposés, (13 m2) * Extérieur : une petite terrasse en bois : table, chaises de jardin, parasol, barbecue * Table de ping-pong située à proximité du gîte * Local collectif fermé pour stocker vélos, skis… * Local situé derrière la maison avec machine à laver pour 2 gîtes, aspirateur. Possibilité : * Lit 1 pers. pliant, lit bébé, chaise haute enfant Parkings pour les locataires.
Périodes d'ouverture et horaires
- Toute l'année.
Classements et Labels
Équipements et services
- Salon
- Terrasse
- Barbecue
- Parking à proximité
- Animaux acceptés
- Aspirateur
- Lit 140 cm
- Four
- Lave linge collectif
- Réfrigérateur
- Télévision
- Toilettes séparées
- 1 salle de bain (privée)
- Chauffage électrique
ⓘ Animaux acceptés si accord du propriétaire
Environnement
- En montagne
- Station de ski
Moyens de paiement
- Chèque-Vacances Classic
INSPIRATION









