Chalet Esta
Montcel
420,00 €
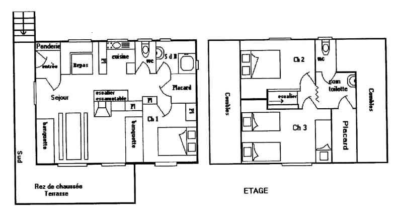
Séjour-cuisine, 3 chambres, 2 lits 2 pers., 3 lits 1 pers., 1 SE, cabinet de toilette. Équipé de cellier, lave linge, lave-vaisselle, télévision, lecteur DVD, cheminée, garage servant de local à skis et de remise.
Périodes d'ouverture et horaires
- Du 01/01 au 31/12.
Tarifs
| Semaine | de 420 à 490 € |
| Tarif groupe à partir de 6 personnes | |
| Charges comprises / tarif spécial |
Classements et Labels
Équipements et services
- Salon de jardin
- Terrasse
- Barbecue
- Parking
- Jardin
- Parking privé
- Jardin indépendant
- Accès Internet privatif Wifi
- Cheminée / Poêle
- Accès Internet privatif Wifi gratuit
- Congélateur
- Coin cuisine
- Douche
- Lave linge privatif
- Lave vaisselle
- Réfrigérateur
- Télévision
- Balcon
- 1 salle de bain (privée)
- Lecteur DVD
- Micro-ondes
- Séjour / Salle à manger
- Cellier
- Cafetière
Activités
- Ski alpin
- Ski nordique
- Ski
Environnement
- En montagne
- A 300 m maxi des pistes
- Station de ski
Moyens de paiement
- Chèque
- Espèces
- Virement
INSPIRATION














