Coryles B551
Les Menuires
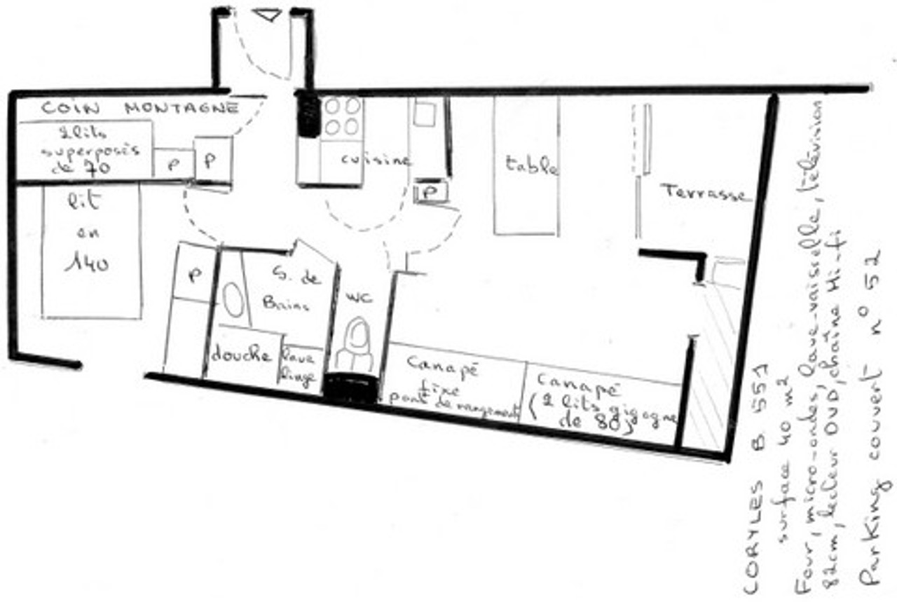
Cuisine : 4 plaques vitrocéramiques, hotte, four, micro-ondes, lave-vaisselle, réfrigérateur, cafetière électrique, bouilloire, grille-pain, appareil à raclette, fondue Coin montagne : 2 lits superposés 70 cm Séjour : 1 lit simple 80 cm 1 lit gigogne 80 cm Télévision écran plat, DVD, HIFI Chambre : 1 lit double 140 cm , Salle de douche : lavabo, douche, WC WC séparé Equipement confort : lave-linge séchant, local à skis Prestations gratuites : garage couvert
Périodes d'ouverture et horaires
- Du 13/06/2025 au 01/09/2026 tous les jours.
Classements et Labels
Équipements et services
- Garage
- Garage privé
- Appareil à raclette
- Appareil à fondue
- Jeux de société
- Lit 140 cm
- Lits superposés
- Douche
- Four
- Lave linge privatif
- Lave vaisselle
- Réfrigérateur
- Sèche linge privatif
- Sèche serviettes
- Télévision
- Balcon
- Toilettes séparées
- Hotte aspirante
- Lecteur DVD
- Micro-ondes
- Lit 90 cm
Langues parlées
- Français
INSPIRATION







